Снятие и установка

 
 取り外し

    1.バッテリーのマイナス端子を取り外す。
    2.e·4WDモーターコネクター(1)を外し、コネクターブラケット(2)よりクリップ(3)を取り外す。
    SDIA3496J.JPG
    :車両フロント
    3.e·4WDモーターのアース端子(1)及びクリップ(2)を取り外す。
    SDIA3227J.JPG
    :車両フロント
    4.ジャンクションボックスよりジャンクションボックス(e·4WDモーター)コネクター(3)を外し、クリップ(4)を取り外す。
    5.ブリーザーチューブ(1)よりエアブリーザーホース(2)を取り外す。
    SDIA3497J.JPG

    6.e·4WDモーター取付ボルト(部)を外し、ファイナルドライブよりe·4WDモーターを取り外す。
    SDIA3498J.JPG
    ■ 注意 ■
    • e·4WDモーターハーネスを引っ張らないこと。
    • e·4WDモーターに衝撃を与えないこと。
    • ブレーキホースに損傷を与えないこと。
    • e·4WDモーター本体に熱による変色及び変形がないか点検し、異常がある場合は交換すること。
    • シャフト部に損傷、はく離、打こん及び曲がりがないか点検し、異常がある場合は交換すること。

 
 取り付け

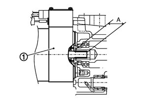
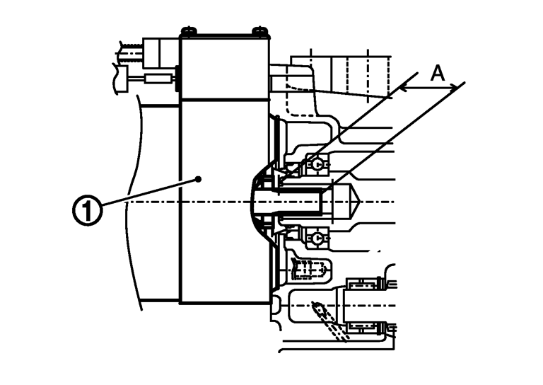
    1.e·4WDモーター(1)のシャフト部(A部)にニッサンクラッチグリース又は相当品を塗布する。
    SDIA3499J.JPG
    ■ 注意 ■
    e·4WDモーターのシャフト部及び挿入部に付着した、古いグリースを取り除くこと。

    2.ファイナルドライブのe·4WDモーター取付面にガスケットフルード1215又は相当品を塗布する。
    SDIA2941J.JPG
    ■ 注意 ■
    • 取付面に付着した古いシール剤、塗布面及び取付面に付着した水分、油分、異物などは除去すること。
    • ファイナルドライブのスリット部が開口していること。

    3.ファイナルドライブにe·4WDモーターを組み付ける。
    ■ 注意 ■
    • e·4WDモーターとファイナルドライブの接合面のすき間は0.5 mm以下であること。
    • e·4WDモーターを取り付けるときは、ボルトを使用して接合面を合わせないこと。
    • e·4WDモーターのシャフト部に衝撃及び力を加えないこと。
    • e·4WDモーターに衝撃を与えて組み付けないこと。
    • e·4WDモーターのハーネスを引っ張らないこと。

    4.e·4WDモーター取付ボルトを仮締めした後、下記の基準で締め付ける。
    SDIA2942J.JPG

    締付順序
    1
    2
    3
    4
    ボルト記号
    D
    B
    A
    C
    締付トルク
    45 N·m(4.6 kg-m)

    5.エアブリーザーホースを取り付ける。
    6.e·4WDモーターのアース端子(1)を取り付け、クリップ(2)で固定する。締付トルクは構成図を参照する。
    SDIA3502J.JPG
    :車両フロント
    ■ 注意 ■
    e·4WDモーターのアース端子(1)のカシメ部(部)を上側にして取り付けること。
    7.ジャンクションボックス(e·4WDモーター)コネクター(3)を接続し、ハーネスをクリップ(4)で固定する。
    8.e·4WDモーターコネクターを接続し、コネクターブラケットにクリップで固定する。
    9.バッテリーのマイナス端子を取り付ける。