ВИЗАТОР
Новости японской автоиндустрии
Главная
Новости
FAQ
Аукционы
Руководства по ремонту
Nissan Wingroad Y12: полное руководство по ремонту и обслуживанию на русском языке
Вы здесь:
Главная
Руководства по ремонту
Nissan Wingroad Y12: полное руководство по ремонту и обслуживанию на русском языке
Кузов
Кузов, замки, безопасность
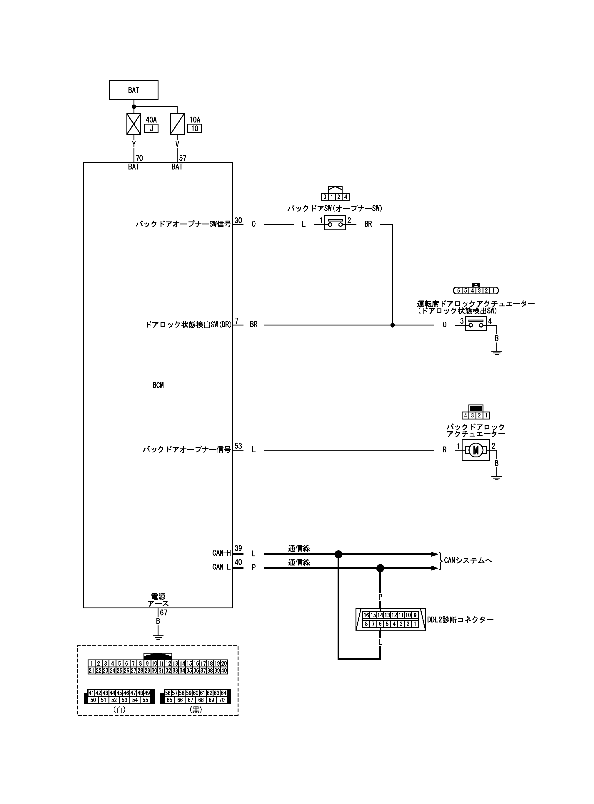
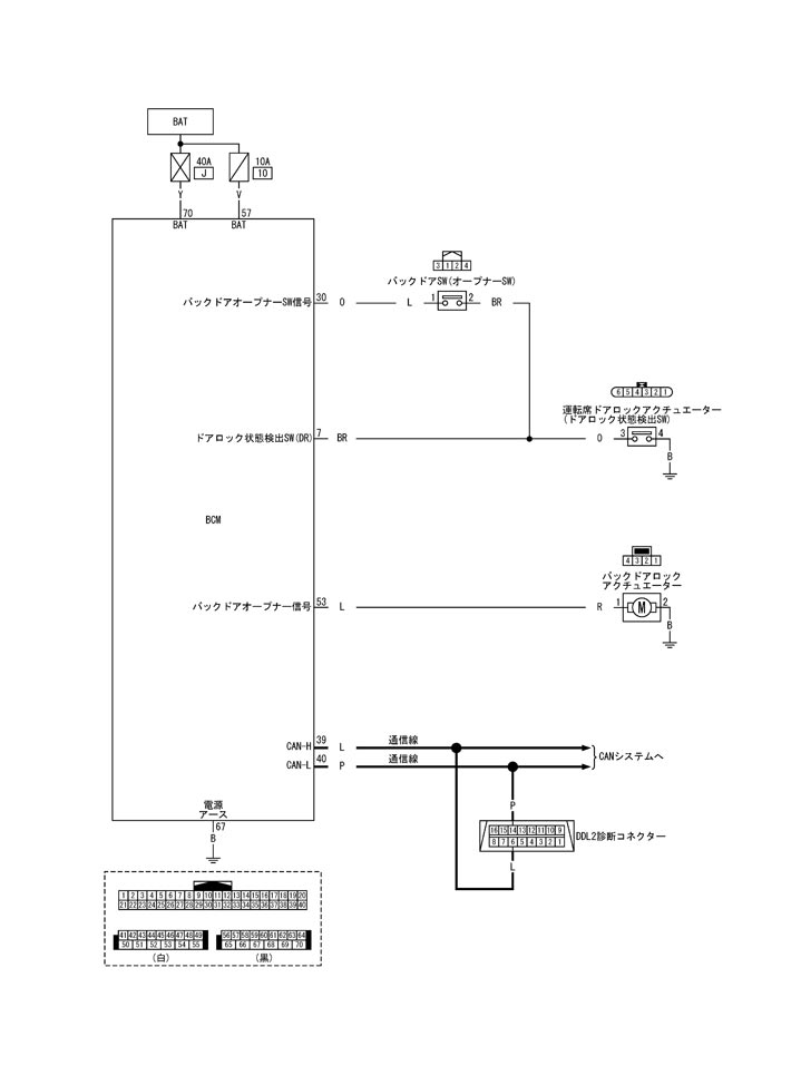
Схема открывания задней двери
Схема открывания задней двери
принципиальная схема
📄
Открыть схему TIWB1552J.PDF
Предыдущий: Положение установки компонента Устройство открывания задней двери
Назад
Следующий: Схема подключения — б/дверь — механизм открывания задней двери
Вперед