ВИЗАТОР
Новости японской автоиндустрии
Главная
Новости
FAQ
Аукционы
Руководства по ремонту
Nissan Wingroad Y12: полное руководство по ремонту и обслуживанию на русском языке
Вы здесь:
Главная
Руководства по ремонту
Nissan Wingroad Y12: полное руководство по ремонту и обслуживанию на русском языке
Электрооборудование
Система освещения
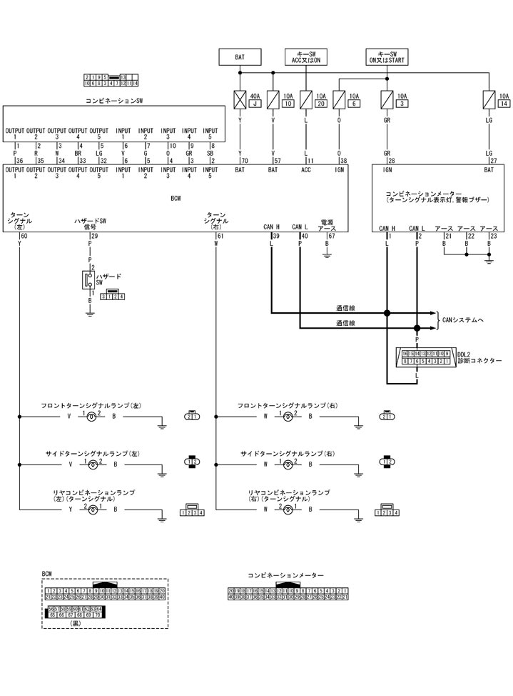
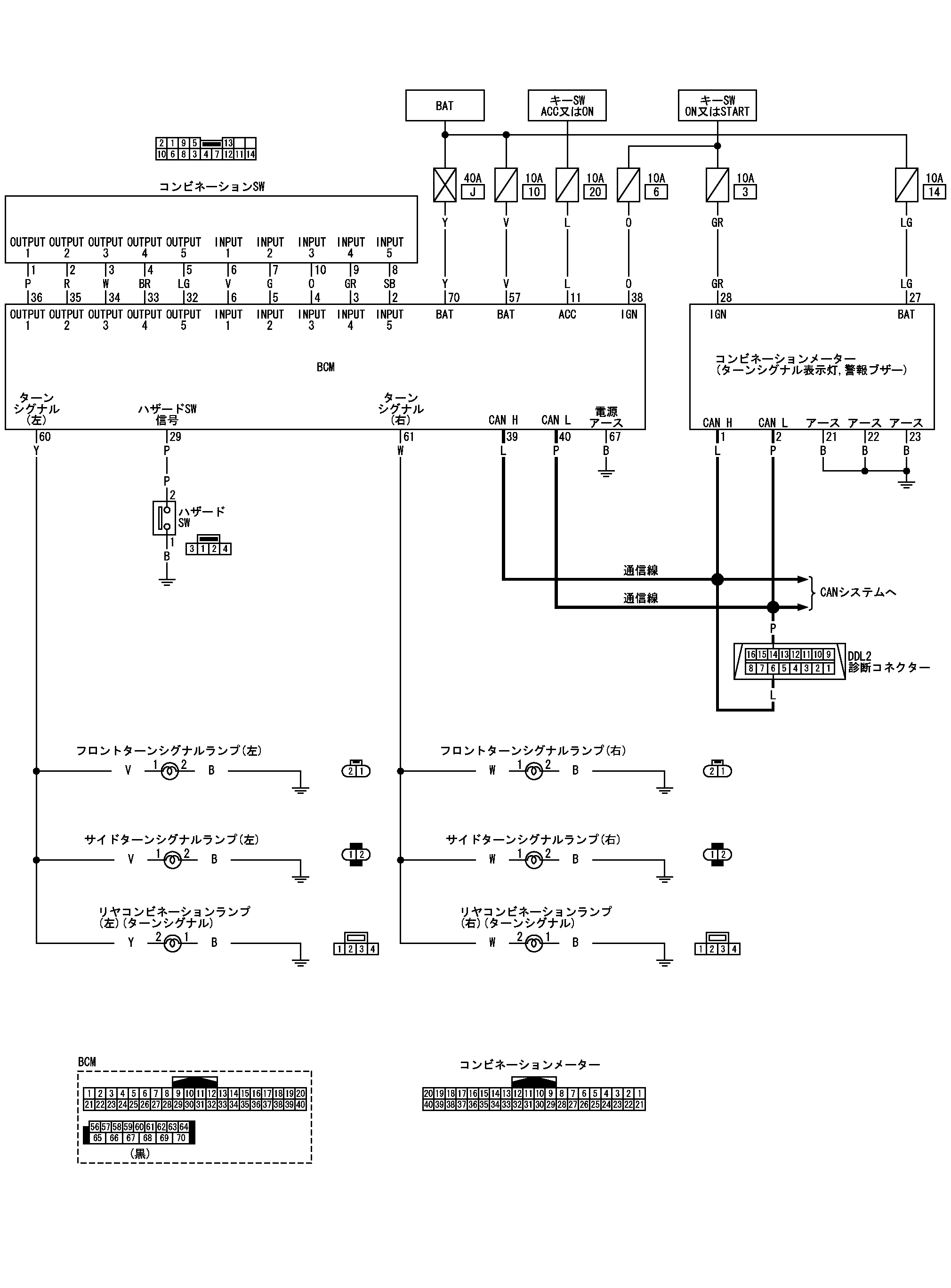
Схема лампы указателя поворота, аварийной лампы
Схема лампы указателя поворота, аварийной лампы
принципиальная схема
📄
Открыть схему TKWB4366J.PDF
Предыдущий: Обзор системы Лампа указателя поворота, аварийная лампа
Назад
Следующий: Схема подключения - поворотник - лампа указателя поворота, аварийная лампа
Вперед