Обзор системы

 
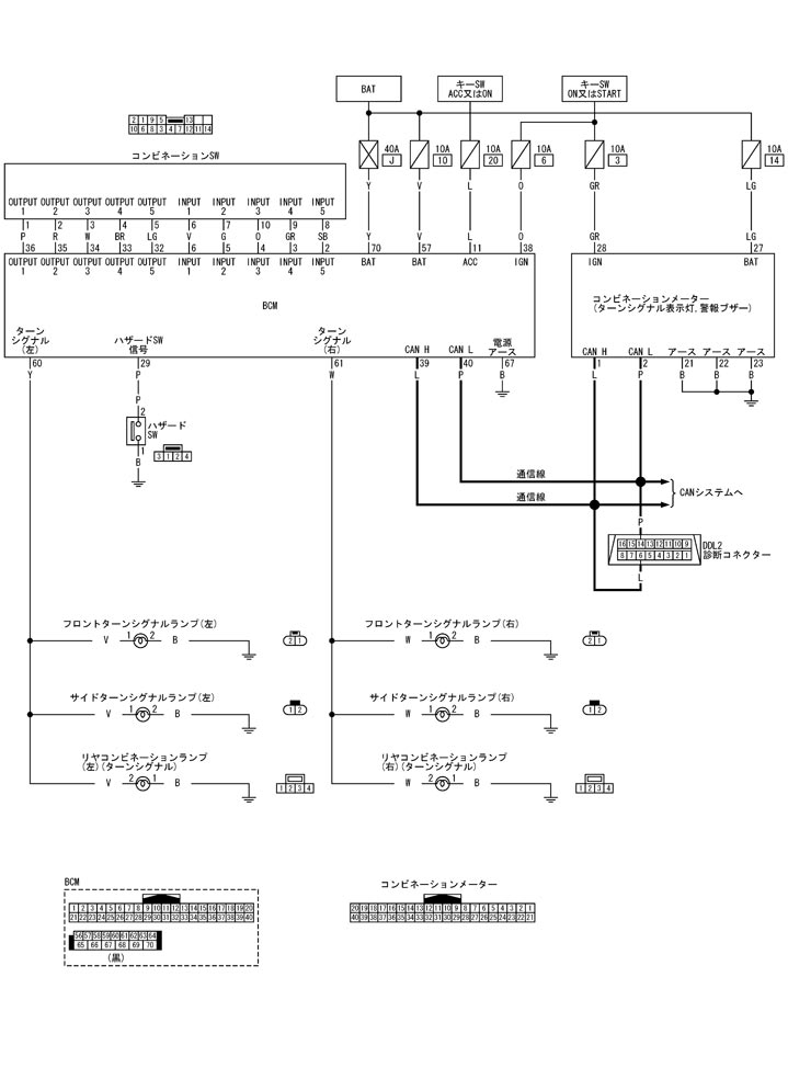
 システム図
 
 ターンシグナルランプ作動(左の場合)

ターンシグナルスイッチ(左)をONにすると、ターン左の接点がONになり、BCMのOUTPUT1からINPUT4の回路が成立する。
このときキースイッチがONであればBCMは、コンビネーションスイッチ読み取り機能により、ターンシグナルスイッチ(左)ONと判断し、ターンシグナルランプ出力(左)をONさせ、BCMからフロントコンビネーションランプ(左)、サイドターンシグナルランプ(左)、リヤコンビネーションランプ(左)に電圧を供給して、各ターンシグナルランプ(左)を点滅させる。
 
 ターンシグナルランプ作動(右の場合)

ターンシグナルスイッチ(右)をONにするとターン右の接点がONになり、BCMのOUTPUT1からINPUT5の回路が成立する。
このときキースイッチがONであればBCMは、コンビネーションスイッチ読み取り機能により、ターンシグナルスイッチ(右)ONと判断し、ターンシグナルランプ出力(右)をONさせBCMからフロントコンビネーションランプ(右)、サイドターンシグナルランプ(右)、リヤコンビネーションランプ(右)に電圧を供給して、各ターンシグナルランプ(右)を点滅させる。
 
 ハザードランプ作動

ハザードスイッチをONにするとBCMのハザードSW信号の状態が変化する。
このときBCMは、ハザードSW ONと判断し、ターンシグナルランプ出力をONさせBCMからフロントコンビネーションランプ(左右)、サイドターンシグナルランプ(左右)、リヤコンビネーションランプ(左右)に電圧を供給して各ターンシグナルランプ(左右)を点滅させる。
 
 ターンシグナルランプ表示灯、およびターンシグナル作動音

ターンシグナルスイッチ、またはハザードスイッチにより、ターンシグナルを作動させるとBCMはCAN通信でコンビネーションメーターに送信しているターンシグナルランプ表示信号(右、左、右左、消灯)を切り替える。
ターンシグナルランプ 表示信号を受信しているコンビネーションメーターは、ターンシグナルランプ表示灯を点滅させ同期して内蔵のブザーでターンシグナル作動音を出力する。
参考:
ターンシグナル作動音とリバース警報が同時に作動する条件の場合、リバース警報が優先して作動する。
 
 コンビネーションスイッチ読み取り機能
 
 回路図