ВИЗАТОР
Новости японской автоиндустрии
Главная
Новости
FAQ
Аукционы
Руководства по ремонту
Nissan Wingroad Y12: полное руководство по ремонту и обслуживанию на русском языке
Вы здесь:
Главная
Руководства по ремонту
Nissan Wingroad Y12: полное руководство по ремонту и обслуживанию на русском языке
Кузов
Кузов, замки, безопасность
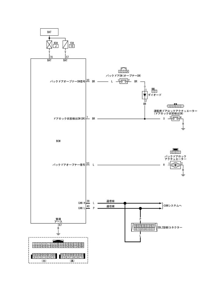
Схема открывания задней двери
Схема открывания задней двери
принципиальная схема
Предыдущий: Положение установки компонента Устройство открывания задней двери
Назад
Следующий: Обзор работы Устройство открывания задней двери
Вперед